O Concello de Ponteareas abre o prazo para a explotación da cafetería do Centro Social ubicado na rúa Oriente. No Boletín Oficial da Provincia de Pontevedra publicouse a apertura do procedemento en concorrencia para a concesión demanial deste servizo. As persoas interesadas dispoñen dun prazo de 15 días naturais, que comeza a contar dende o sábado día 1 de marzo e remata o vindeiro luns 17 de marzo.
Co obxectivo de salvar as limitacións horarias ás que está suxeita a explotación da cafetería e ofrecer vantaxes que posibiliten a rendibilidade deste negocio, o goberno de Ponteareas non cobrará ao concesionario ningunha taxa ou canon, e sufragará os custos da subministración de auga, saneamento, calefacción, enerxía eléctrica e de alarma, no caso de que se instale, así como o mantemento das instalacións.
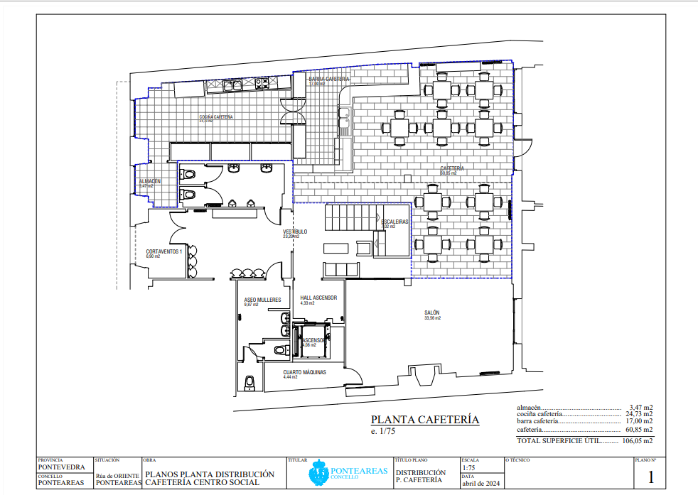
As bases, documentación e planos da cafetería do centro social poden consultarse no taboleiro de anuncios da páxina web do Concello ou seguindo esta ligazón https://ponteareas.sedelectronica.gal/preview-document.4 . Para a adxudicación valorarase a experiencia na hostalería da persoa interesada e un proxecto de mellora da instalación, entre outras cuestións.
A cafetería do Centro Social sitúase no andar baixo nunha zona de paso para os
diferentes servizos do centro. Esta nunha das rúas de acceso peonil á praza Maior,
punto de encontro do municipio.
Con esta concesión o goberno “pretend achegar este espazo á cidadanía e ofrecer un lugar céntrico e agradable para a socialización ademais de ampliar os servizos que ofrece esta instalación pública ás persoas usuarias” asegura Nava Castro, aldaldesa de Ponteareas.

